汽轮机轴承座轴向振动过大,经过全面检查,发现轴承瓦枕支撑垫块磨损,防转销钉磨损严重,销孔磨偏。因支撑垫块磨损,标高下沉约0.75mm,如图1所示。
图1 磨偏、磨损情况
处理措施:
(1)更换上部瓦枕绝缘垫块,检查接触情况;
(2)瓦面超声检查(未见异常);
(3)上部紧箍磨变形销孔,采用镶套处理;
(4)重新按照挡油板洼窝尺寸调整轴瓦位置、轴承座标高。轴承上抬0.45 mm,轴承座上抬0.30 mm,地脚螺栓力矩按标准紧固。
经过处理后,轴承座的垂直、水平振动明显好转,但轴向振动大的问题仍然存在。
再次,经过轴承振动进行测试分析,满负荷时:
(1)轴承轴振80 μm左右;
(2)轴承座水平、垂直振动不大,小于30 μm;
(3)轴承座轴向振动达到140 μm;
(4)轴向、垂直、水平振动的频谱都是以50 Hz分量为主,其余频率成分很少。
如图2所示,停机前进行振动测试,并在轴承箱后部,用一只千斤顶顶起。观察振动变化,可以看出,轴承箱后侧顶起0.03~0.05 mm后,轴向瓦振有变化,即由103 μm降至84 μm。其它方向变化不大。
图2 千斤顶放置位置(一只)
处理措施:
(1)盘车状态下,架百分表测试转轴径向晃度;测试对轮瓢偏情况;在励磁机最尾端架百分表,测试转轴的轴向窜动;
(2)解体轴承,测量轴颈扬度、轴颈晃度、轴承座扬度、轴承座底部垫块与洼窝接触情况、轴承紧力、乌金面工作状态;
(3)检查轴承座4个地脚螺栓的紧力;
(4)配重。第一次配重方案:在励磁机尾部圆盘140°处加292 g。第二次配重方案:拆除励磁机尾部圆盘86°处配重300 g、170°处配重387 g,并在332°处新加292 g。
经过两次配重后,轴承的振动有所减小,但轴承座的轴向振动依然保持在200μm以上,这是怎么回事呢?
经分析讨论得知,轴承座存在较大的轴向振动,其振动频率和转速相吻合,从振动性质来说,属于普通强迫振动。类似于径向普通强迫振动诊断,首先应检测轴承座的轴向动刚度。引起轴向振动的原因大都是轴承座轴向刚度不足,特别是台板和基础之间存在松动;其次是轴承座和发电机端盖轴承轴向结构刚度不足。绝大多数汽轮发电机组径向振动不大时,只要消除轴承座连接刚度不足的缺陷便可。
从现场情况看,轴承座存在刚度不足的现象,原因可能包括:
(1)轴承座地脚螺栓紧力不足;
(2)轴承座二次灌浆部分松裂。在该汽轮机基建过程中,由于季节、温度等因素的影响,有可能造成此问题;
(3)轴承座整体刚性下降。长期的超标瓦振对轴承座造成疲劳损伤,影响轴承座整体刚性。轴承座长时间的轴向振动也可能形成恶性循环,使得轴承座整体刚性下降(如轴承座裂纹等缺陷)。
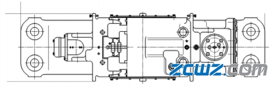
图3所示为传统机组轴承座地脚示意图。可以看出其为矩形对称布置,跨距较大,轴承座中间部分势必有刚性不足的风险。但阿尔斯通百万机组轴承座地脚为平行四边形对称布置,将轴承座的跨距缩短,宽度增加,中间部分刚性势必更好。
在以后停机检修中,应重点检查刚性变差的原因。可从以下几方面考虑:
(1)轴承座地脚螺栓紧力的重新核查;
(2)轴承座底部地脚螺栓灌浆部分的仔细检查;
(3)轴承座的整体检查,尤其是有无裂纹。
图3 传统机组轴承座地脚示意图
结果
通过对汽轮发电机轴承配重及轴承座底部架千斤顶,基本解决了轴承振动大的问题,保障了机组的安全稳定运行。








